|
锋与珍の筑@平凡的窝 求救!! 洋灰屋顶裂横和漏水了! 第163楼,第六页
[复制链接]
|
|
发表于 22-9-2011 11:10 PM
|
显示全部楼层
哈哈,不是啦,我住的地方可离你千公里以外。只能说是缘咯,我想要找篱笆的资料,就在家居这里收索了一下,看到你的贴,就从头看了一遍,看到你说九月拿钥匙,就了解一下近况。都没有quote你,却被你看到回复了 |
|
|
|
|
|
|
|
发表于 22-9-2011 11:53 PM
|
显示全部楼层
楼主的屋子真的好美咧。。。160K简直是底到烂 而且又半独立~~~
看到都爽阿。。。。 |
|
|
|
|
|
|
|

楼主 |
发表于 25-9-2011 10:51 PM
|
显示全部楼层
|
|
|
|
|
|
|
发表于 25-9-2011 11:31 PM
|
显示全部楼层
19/9/11那一天,Dev那边打了一通电话说21/9/11可以拿钥匙了,还有到时记得带些钱settle balance哦!听完后, ...
[DB]Feng 发表于 25-9-2011 10:51 PM 
好大哦~~~~ |
|
|
|
|
|
|
|
发表于 26-9-2011 07:07 AM
|
显示全部楼层
|
|
|
|
|
|
|

楼主 |
发表于 26-9-2011 09:48 PM
|
显示全部楼层
|
|
|
|
|
|
|

楼主 |
发表于 26-9-2011 09:48 PM
|
显示全部楼层
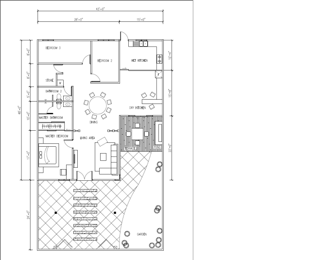
请各位帮帮忙提供些IDEA!谢谢
本帖最后由 [DB]Feng 于 26-9-2011 09:56 PM 编辑
以下是我的floor plan!
这间家是我俩公婆新婚后住入住的。
各位有什么idea吗,如果我把饭座换去干厨房,让后饭座那带可以做成什么呢?
近期就要开工了!!请各位慷慨解囊!谢谢
[img] [/img] |
|
|
|
|
|
|
|

楼主 |
发表于 26-9-2011 10:00 PM
|
显示全部楼层
本帖最后由 [DB]Feng 于 26-9-2011 10:01 PM 编辑
这张是原版图。。。。 [img=40,40] [/img] |
|
|
|
|
|
|
|
发表于 26-9-2011 10:05 PM
|
显示全部楼层
真的好大,很值得,围墙真的很漂亮,真的要打掉吗?旁边的空地扩建一定很棒的。
恭喜 |
|
|
|
|
|
|
|

楼主 |
发表于 26-9-2011 10:28 PM
|
显示全部楼层
真的好大,很值得,围墙真的很漂亮,真的要打掉吗?旁边的空地扩建一定很棒的。
恭喜
star111 发表于 26-9-2011 10:05 PM 
旁边空地15尺,但是屋内就满小的!要不然就不必扩建了!你是说打掉篱笆吗?是的,因为那篱笆满脆弱下! |
|
|
|
|
|
|
|
发表于 27-9-2011 06:46 PM
|
显示全部楼层
回复 130# [DB]Feng
扩建就很漂亮了哦 |
|
|
|
|
|
|
|

楼主 |
发表于 28-11-2011 10:56 PM
|
显示全部楼层
|
|
|
|
|
|
|
发表于 29-11-2011 09:38 AM
|
显示全部楼层
从我拿到钥匙到现在都差不多整两个多月了!装修佬只带了3个工人工作了一个礼拜而已,挖了几个footing过后就 ...
[DB]Feng 发表于 28-11-2011 10:56 PM 
看了那些铁架铁支,恐怕那地板瓷转会花了~ |
|
|
|
|
|
|
|
发表于 29-11-2011 05:53 PM
|
显示全部楼层
|
|
|
|
|
|
|

楼主 |
发表于 29-11-2011 08:09 PM
|
显示全部楼层
看了那些铁架铁支,恐怕那地板瓷转会花了~
sheryeego 发表于 29-11-2011 09:38 AM 
放在外面又怕被偷,所以放进里面咯!目前的quotation里有包过hacking地上,因为当时我有打算换floor tiles的!
如果到时不打算换tiles的话,再来扣掉咯! |
|
|
|
|
|
|
|

楼主 |
发表于 29-11-2011 08:10 PM
|
显示全部楼层
哇塞!!又是大改造耶。。
湖内 发表于 29-11-2011 05:53 PM 
应该说是extend 吧 |
|
|
|
|
|
|
|
发表于 29-11-2011 10:35 PM
|
显示全部楼层
回复 136# [DB]Feng
一样的啦。。楼主不用谦虚啦。。 |
|
|
|
|
|
|
|
发表于 4-12-2011 04:46 PM
|
显示全部楼层
保留 |
|
|
|
|
|
|
|

楼主 |
发表于 19-12-2011 11:04 PM
|
显示全部楼层
|
|
|
|
|
|
|
发表于 20-12-2011 09:44 AM
|
显示全部楼层
加照了!!!!!!!! 目前有喜又有忧!!!!喜的是,今天与太太去政府的klinik checking, 被证实怀 ...
[DB]Feng 发表于 19-12-2011 11:04 PM 
先恭喜LZ双喜临门咯。
我想应该不会有什么影响啦,毕竟还没入伙嘛。
叫你老婆别去新家了,那儿一定经常会出现打钉和补灰的事情,这些就避忌下咯。
至于入伙你就要找师傅来问咯,要不然冲到也不好。
佳礼里有很多这方面的专才,我看你可以请教他们的。 |
|
|
|
|
|
|
| |
本周最热论坛帖子
|