佳礼资讯网

 找回密码
 注册

ADVERTISEMENT

搜索
楼主: yanguy

Jesselton Hills @ Alma

  [复制链接]
发表于 24-8-2011 02:41 PM | 显示全部楼层
好戏在后头呢。。    飘洋过海来的IJM, permatang sactuary 将会“连接“jesselton 的尾端。。。超 ...
yanguy 发表于 24-8-2011 02:33 PM


搞到我心痒痒,可惜钱包干了。。。
回复

使用道具 举报


ADVERTISEMENT

 楼主| 发表于 25-8-2011 02:02 PM | 显示全部楼层
本帖最后由 yanguy 于 25-8-2011 03:21 PM 编辑
搞到我心痒痒,可惜钱包干了。。。
sonystyle 发表于 24-8-2011 02:41 PM



   不一样的新价格热辣辣的出炉咯!!!
   要买的记得找我哦。。可以“分享"屋主介绍的花红呢!!(广告时间。。呵呵呵)
回复

使用道具 举报

 楼主| 发表于 25-8-2011 03:29 PM | 显示全部楼层
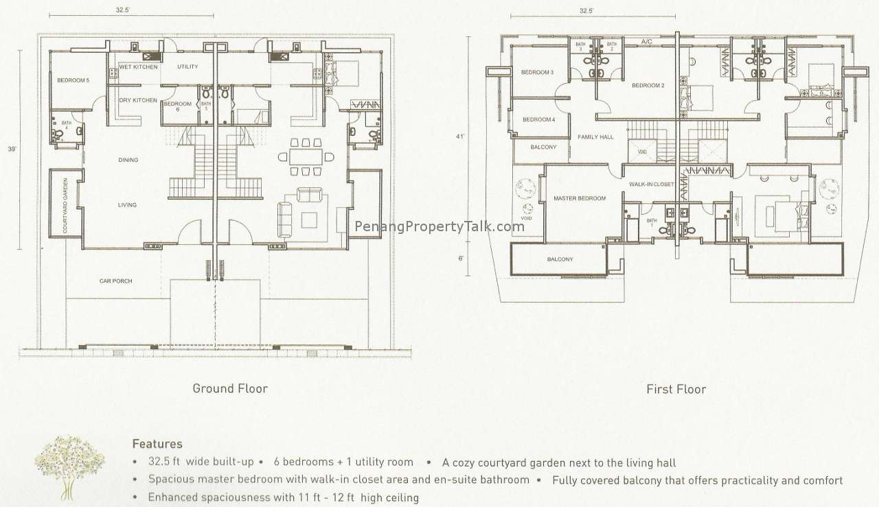
不一样的新价格:    2层半独立:588K-15K折扣优惠
   面积共2604sqft, 36x72  建筑 26x44, 2478sf


回复

使用道具 举报

 楼主| 发表于 25-8-2011 03:31 PM | 显示全部楼层
仅4间的Type B
售价:698K-15K


回复

使用道具 举报

 楼主| 发表于 25-8-2011 03:36 PM | 显示全部楼层
高级的2.5层半独立式,仅16个单位不一样的有前有后

不一样的价格: 790K15K






回复

使用道具 举报

发表于 26-8-2011 09:38 AM | 显示全部楼层
有前有后蛮特别的。最底层拿来做书房/会客室/home business很适合。
回复

使用道具 举报

Follow Us
发表于 26-8-2011 12:31 PM | 显示全部楼层
哇哇哇。。
我朋友在年头敢敢下定的半独立式 512k-10K = 502K..
现在要 588k-15k=573k...
哇唠。。。猪龙入水了至少70k...
早知道我也 lalalam 。。。 哎呀呀。。。
回复

使用道具 举报

发表于 26-8-2011 12:33 PM | 显示全部楼层
有前有后蛮特别的。最底层拿来做书房/会客室/home business很适合。
avenue 发表于 26-8-2011 09:38 AM



   哇唠。。 775K的半独立。。超级酷!!!   16间而已。。不懂会卖光光吗???

   现在573k 的半独立价格是N年后最后排屋的价格咯!! 开玩笑!!!
回复

使用道具 举报


ADVERTISEMENT

发表于 26-8-2011 12:36 PM | 显示全部楼层
好戏在后头呢。。    飘洋过海来的IJM, permatang sactuary 将会“连接“jesselton 的尾端。。。超 ...
yanguy 发表于 24-8-2011 02:33 PM



   ijm的开价好像是400k哦。。(在屋展的时候听sales说的)   不过现在的jesselton 要573k..
   相信permatang sanctuary 应该也是依价卖屋的咯。。。{:2_81:}{:2_81:}
回复

使用道具 举报

发表于 26-8-2011 12:41 PM | 显示全部楼层
ijm的开价好像是400k哦。。(在屋展的时候听sales说的)   不过现在的jesselton 要573k..
   相 ...
pnd 发表于 26-8-2011 12:36 PM

因为IJM的比较小了一点
回复

使用道具 举报

 楼主| 发表于 26-8-2011 01:07 PM | 显示全部楼层
the star quote
http://thestar.com.my/metro/story.asp?file=/2011/8/26/north/9364365&sec=North
Great buys from DNP Land


Three projects: Ang showing the artist impression of the Impiana Commercial Hub. The firm's other two projects in Bukit Mertajam are Jesselton Hill and BM Utama.

MAKING its mark as DNP Land’s first mega commercial project, the Impiana Commercial Hub is poised to revolutionise the developing township of Alma in Bukit Mertajam.

DNP Land Sdn Bhd senior marketing manager Joe Ang Kean Joo said that the 20ha commercial centre offers a diverse range of commercial properties ranging from terraced-shops to semi-detached show gallery and courtyard plazas.

Phase One of the project comprises of the Impiana Boulevard which consists of 72 units of two-storey shop offices with mezzanine floor and has a built up area of more than 371.6sq m (4,000sq ft).

The units are priced at about RM1mil each.

There is also the Impiana Avenue, which consists of 34 units of two and three-storey shop offices with land sizes measuring 111sq m (1,200sq ft), priced at RM868,000 each.

“Tesco hypermarket commenced their operations here last year and we recently entered into an agreement with Jusco to open up a new departmental store here in the future. This will provide an added crowd-pulling factor,” said Ang.

The remaining units of the project will be open for sale to potential buyers at the upcoming DNP Property Showcase 2011 held at the DNP sales gallery in Alma, Bukit Mer- tajam from 10am to 6pm from tomorrow to Wednesday.

The other two projects that will be on offer during the property showcase are the Jesselton Hill in Bukit Mertajam and BM Utama in Bukit Minyak.

Set for launch this year, Phase One of Jesselton Hill comprises 136 units of three types of semi-detached designs, priced from RM588,000 onwards and is now open for registration.

Ang said there will be an early bird promotion, offering a discount of RM15,000, as well as free legal fees and stamp duty on transfer and also free clubhouse membership and security services for 24 months.

As for BM Utama, the residential area, which spans 28ha of prime freehold land, is poised to be the premier address in the fast-growing precinct of Bukit Minyak.

Comprising over 700 landed residential units to be built in several phases, the project is targeted for completion in 2013.

Phase Three of the project comprises of two and three-storey link homes, with selling prices starting from RM408,000 onwards for the double-storey units while the triple-storeys are at RM498,000 onwards.

Ang also said that visitors may enjoy up to RM20,000 worth of rebate at the show-case.

“We hope that our three projects in Bukit Mertajam will receive excellent response from buyers at the showcase,” he added.


回复

使用道具 举报

发表于 26-8-2011 03:02 PM | 显示全部楼层
1200psf - RM868k...会卖到怎样呢???
回复

使用道具 举报

发表于 26-8-2011 04:30 PM | 显示全部楼层
不一样的新价格热辣辣的出炉咯!!!
   要买的记得找我哦。。可以“分享"屋主介绍的花红呢!!( ...
yanguy 发表于 25-8-2011 02:02 PM


老板,你买了几间?
回复

使用道具 举报

发表于 28-8-2011 08:06 PM | 显示全部楼层
刚刚从那边回来。。。。












回复

使用道具 举报

发表于 28-8-2011 10:03 PM | 显示全部楼层
不一样的新价格:    2层半独立:588K-15K折扣优惠
   面积共2604sqft, 36x72  建筑 26x44, 2478sf
yanguy 发表于 25-8-2011 03:29 PM



    价钱涨到吓人。。。 真的是不一样。。。
回复

使用道具 举报

发表于 28-8-2011 10:07 PM | 显示全部楼层
照片里的屋外,是不是有支黑色斜斜的柱子?有点怪怪的。
回复

使用道具 举报


ADVERTISEMENT

发表于 28-8-2011 10:46 PM | 显示全部楼层
漂亮是漂亮,不过很贵下~
回复

使用道具 举报

发表于 28-8-2011 11:34 PM | 显示全部楼层
价钱涨到吓人。。。 真的是不一样。。。
georgezhtan 发表于 28-8-2011 10:03 PM



    不一样


照片里的屋外,是不是有支黑色斜斜的柱子?有点怪怪的。
chattyangels 发表于 28-8-2011 10:07 PM



   

没有讲也没有注意

漂亮是漂亮,不过很贵下~
@Forest@ 发表于 28-8-2011 10:46 PM



   

将来更加贵
回复

使用道具 举报

发表于 29-8-2011 12:32 AM | 显示全部楼层
不一样





   

没有讲也没有注意




   

将来更加贵
mingshi 发表于 28-8-2011 11:34 PM



    我看是给DNP炒高了。。。
回复

使用道具 举报

发表于 31-8-2011 11:41 AM | 显示全部楼层
这边苍蝇也不少嘛。不过蛮喜欢两层半的底层。
回复

使用道具 举报

您需要登录后才可以回帖 登录 | 注册

本版积分规则

 

ADVERTISEMENT


本周最热论坛帖子本周最热论坛帖子

ADVERTISEMENT



ADVERTISEMENT

ADVERTISEMENT


版权所有 © 1996-2026 Cari Internet Sdn Bhd (483575-W)|IPSERVERONE 提供云主机|广告刊登|关于我们|私隐权|免控|投诉|联络|脸书|佳礼资讯网

GMT+8, 13-2-2026 01:57 PM , Processed in 0.116964 second(s), 20 queries , Gzip On.

Powered by Discuz! X3.4

Copyright © 2001-2021, Tencent Cloud.

快速回复 返回顶部 返回列表