佳礼资讯网

 找回密码
 注册

ADVERTISEMENT

查看: 7916|回复: 53

[求助] 帮我看看我的 duplex condo 风水问题

  [复制链接]
发表于 10-6-2011 11:04 AM | 显示全部楼层 |阅读模式
本帖最后由 alice1984 于 10-6-2011 11:08 AM 编辑

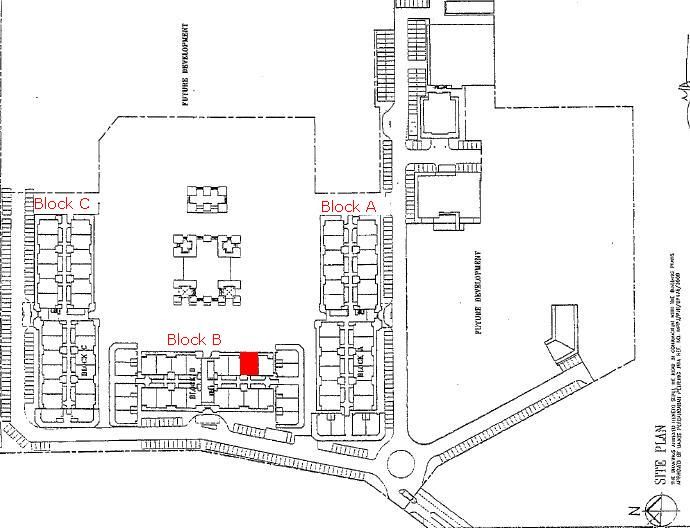
这是3block的平面图,红色是我单位在level 10th(20/21), 最高是29楼.

如果按照condo大门入应该是[西], 还是按照出口[西]?


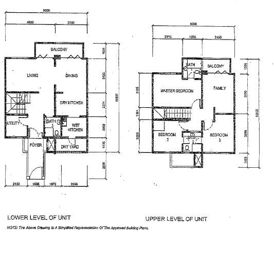
这是我的单位平面.

这个单位是空空还没有水电也没有装修.前屋买来, 没有人住过.




这是我的平面家具的位


会把厨房三面




Master Room/Family 会打通。我们打睡在family room,床位方没对着露台(稍后会解露台望出去问)

Family门可会用glass mosaic盖门想要阳光透进可是没.


二房/三房很头痛有厕所门有窗有房我的床头会靠厕所门.有什么东西可以化解吗?

主人房的房门一进会对着厕所门的一,有问?




这是Family露台望出去,对面3只电讯塔(应该不是高壓電塔,只是给电小坡山),有人说好像三支香,風水大

可是我的单位是高过电讯塔, 有问?

回复

使用道具 举报


ADVERTISEMENT

发表于 10-6-2011 03:22 PM | 显示全部楼层
按照大门出口[坐东面西], 请问你是站在哪里量?

风水的度数, 一个西面就分成三格, 每格15度, 如是十五度偏左偏右, 下盘就有所不同。你应该提供度数才能问风水。

电塔与你无害, 勿惊。

低层厨房的墙可以拆吗? 那不是应该有柱子支撑房子的重量吗? 你要问过师傅才好。再者, 为什么你的厨房占据的空间那么大?杂货房的空间可以等于一间厕所?

你信不信? 一定有人跟你说, 你的房子穿堂杀啦, 灶头对洗碗盆啦, 厕所在门口啦。哈哈哈
回复

使用道具 举报

 楼主| 发表于 10-6-2011 03:50 PM | 显示全部楼层
按照大门出口[坐东面西], 请问你是站在哪里量?

风水的度数, 一个西面就分成三格, 每格15度, 如是十五 ...
leong123 发表于 10-6-2011 03:22 PM


我没确在哪里量,按照block平面图里的compas方针。


我应该站在哪里量?大门不同的度数?
低层厨房的墙是可以拆的,没有柱子. 厨房只有10x15不算大。厕所6x6. 杂货房大概7x7.
厕所在门口, 是不可能改变的了。有什么东西可以化解吗?

回复

使用道具 举报

发表于 10-6-2011 04:06 PM | 显示全部楼层
我没确实在哪里量,只是按照block平面图里的compas方向针。
我应该站在哪里量?大门向外面?每个角度有 ...
alice1984 发表于 10-6-2011 03:50 PM



    如果是这样, 应该没有人可以给你风水意见了。 floor plan 的坐向不等于屋向, 屋向不等于门向。 你要在房子大门口内, 面向门外测量,然后记录指南针的度数。

厕所在门口, 本来就是气机不好,犯大忌,试想哪有人会在门口处做厕所? 没有什么东西化解,除非废掉。唯常保持干净无气味,抽风系统小心处理好。
回复

使用道具 举报

 楼主| 发表于 10-6-2011 04:18 PM | 显示全部楼层
回复 4# leong123


  那我明天会记录指南针的度数Iphone的指南针可以吗?其它范度数吗?



低层厕所不会时常使只有,会保持干净哦。


那房间也没度数没意见?  

感谢
回复

使用道具 举报

发表于 10-6-2011 04:41 PM | 显示全部楼层
回复  leong123


  那我明天会去记录指南针的度数。Iphone的指南针可以吗?其它范围不需要度数吗?

...
alice1984 发表于 10-6-2011 04:18 PM



   应该是可以的, 只是门口就够。其他不需要。

再问, 你会装修吗?
回复

使用道具 举报

Follow Us
 楼主| 发表于 10-6-2011 06:54 PM | 显示全部楼层
本帖最后由 alice1984 于 10-6-2011 06:56 PM 编辑

回复 6# leong123


   为何这莫问呢...你问我是做装修的? 还是家会不会装修?
回复

使用道具 举报

 楼主| 发表于 10-6-2011 07:00 PM | 显示全部楼层
大概会装修一点点...低层更换2x2地砖.厨房墙砖更换.主人房浴室翻新.石膏天花板.油漆.
回复

使用道具 举报


ADVERTISEMENT

 楼主| 发表于 11-6-2011 09:43 PM | 显示全部楼层
应该是可以的, 只是门口就够。其他不需要。

再问, 你会装修吗?
leong123 发表于 10-6-2011 04:41 PM


有了门口度数: 274 West
回复

使用道具 举报

发表于 12-6-2011 04:20 PM | 显示全部楼层
如果这是我的房子, 我会做以下步骤。

1, 门口的鞋子收好。 近门口, 厕所的墙,挂一幅山水的画, 有古朴,典雅的感觉,重点是山。 门外, 近门处有灯要去掉。阳台不遮掩,长保持通风,阳光透射。

2,灶头更靠近右上角。厨房的墙拆掉, 包括阳台处, 突出的小小墙。

3,饭厅适宜圆形,白色的饭桌。 不宜木条纹,长形的饭桌。饭厅不置任何电器, 植物。角落可置类似古董的瓷器。

4,你坐在沙发, 眼看电视, 在电视右手边,亦可置类似古董的瓷器, 或是美丽的雅石,是雅石,不是水晶。

5,你的房间打通后, 不可以如图还有突出的墙。 那书桌搬去对面的墙, 靠楼梯的墙,坐中间位置,近门处。 现在放书桌的墙, 可以放书架。 开房门,左手边你放不懂是什么东西的东西, 移开。床单可用白色,花纹简单,或深色系列。衣服不放床, 被单要整齐。

6,三房门后置深蓝色地毯。 三房没有衣橱? 其实你没有标明窗口。床单可用白色,花纹简单,或深色系列。衣服不放床, 被单要整齐。二三房内厕门最好可以封掉,从外面进。 若不可, 三房厕门长关,厕所通风系统要做好。

7,二房的床, 两张合屏, 床头向楼梯的墙。靠最边,床的左手边, 可以放一个小柜,或是小桌。 你也没有标明窗口。衣橱放另一边。床单用浅紫色。

以上皆是纸上谈兵。风水务必现场勘查,请自参酌。 楼主若是注重风水, 还劳请有经验可靠的风水师为你鉴定。
回复

使用道具 举报

 楼主| 发表于 12-6-2011 11:55 PM | 显示全部楼层
本帖最后由 alice1984 于 13-6-2011 12:25 AM 编辑

回复 10# leong123

为何近门处有灯要去掉, 门外不可以有灯?哪晚上我的走廊不是很暗?


大门是一副大小门,小门很少会开到. 打算在小门之内(厕所的墙)订做高鞋柜把贵重的鞋子收在屋内.
    门口只会放
拖鞋.

哪我可以买低鞋柜(4-5尺高) 然后把画挂在鞋柜上面?






灶头靠近右上角?哪不是跟厨房水龙头面对面?
    阳台里外突出的小墙是横梁/
柱子来的, 不可拆掉!

阳台不遮掩,长保持通风,阳光透射! 那阳台的两幅折叠门不可放帘?





    这可麻烦了.我们选择长形的饭桌+黑色玻璃的饭桌
.饭厅可放镜子?


房间打通是有规定的尺寸的,不可把整幅墙打通的。
    开房门左手边是梳妆台,会把它移开不想厕门
对着梳妆台的镜子。

我们把房打通的目地想把10尺的衣橱放在靠楼梯的墙,所以有了衣橱就不可以放床位了.
    把书桌搬去对面的墙,就没地方放衣橱了,女人的重点
在衣橱哦!





其实二三房只是给客人和亲戚过夜而已. 三房以后会有衣橱(). 二房应该放不到衣橱了.   

计划把二三房内厕门封掉从外面进,可是大房门里外就会对着厕门.
    还是我把大房门封掉,在
Family开一个房门?
应为我在想"气"从楼梯上来就会冲入大房厕门和二三房厕门. Family主人房就没了"气"?






改了一点点


回复

使用道具 举报

 楼主| 发表于 13-6-2011 10:04 AM | 显示全部楼层
<衣服不放床,被单要整齐>的意义是什末?
平常早上很少整里被单,时常会把收干的衣服放在床上.
回复

使用道具 举报

发表于 13-6-2011 03:58 PM | 显示全部楼层
如果你本来就有这么多打算, 就应该一次过说清楚。如果下次能早提供这些照片, 就能让人更有印象。

1, 你的门口要低调, 要收敛。你可以放灯, 当要离门口远一点, 光线不太强。
2, 大门口开旺气,但门口颜色不对。 黑色属水, 土克水, 现在星克未来星, 凶 。 门口的鞋柜,倘若木色,高大, 是木克土, 把旺气克死。 拖鞋乱放把旺气换成衰气。
3,四五尺, 差不多一个人那么高, 再放画在上面。不就很怪? 应以门的高度做比例。
4, 对。 厨房没有水火相冲的问题。
5, 你在之前没有提到会有横梁。 即使打通厨房的墙, 亦会有横梁。那么大条横梁在中宫, 压力很大。
6. 房间打通是有规定的尺寸的,不可把整幅墙打通的。你没有在图上表明, 如图, 是应经打通, 还是未打通。 打通后, 墙到哪里?
7, 饭厅不放镜子。镜子加旁边露台的光线, 没有人会想回家吃饭。可以用黑色饭桌。
8,大房衣橱只是和现在的书桌调位,我怎么也想不出把书桌搬去对面的墙,就没地方放衣橱了?
9, family 房不是没有气, 而且还是大病气呢。床头四条东西是什么?
回复

使用道具 举报

 楼主| 发表于 14-6-2011 12:18 PM | 显示全部楼层
回复 13# leong123

不好意识.太多照片了不知要提供那些照片.
我的单位还是空空没有水电也还没有装修的.如图(是管理室提供)是应经打通和规定的尺寸了.

不好意识. 书桌墙是有窗口的. 提供的单位平面图太不清楚了.


饭厅客厅之间会有横梁.客厅门口之间也会有横梁(橙色墙).


family 房是大病气?那还可以睡这边吗?
回复

使用道具 举报

发表于 15-6-2011 02:06 AM | 显示全部楼层
很好的帖子和問題,看了茅塞頓開
回复

使用道具 举报

发表于 15-6-2011 08:56 AM | 显示全部楼层
根据你最新的图,

请问厨房打通后, 就是这个样子? 所谓打通, 是打通哪里?

我再重整意见, 请自参酌。

1, 门口的鞋子收好。 近门口, 厕所的墙,挂一幅山水的画, 有古朴,典雅的感觉,重点是山。鞋柜不建议太高,也不建议有木条纹色的柜。门口的鞋子收好。柜与画,应以门的高度做比例。不要想象画要很大张, 按比例与喜好而定。
2, 门口要低调, 要收敛。你可以放灯, 当要离门口远一点, 光线不太强。阳台不遮掩,长保持通风,阳光透射。门口的厕所,确实气机不好, 如果可以不用就不用。
3,灶头更靠近右上角。厨房没有水火相冲的问题。
4,饭厅角落(近露台)可置类似古董的瓷器,不置任何电器, 植物。但如果你要用黑色的, 那你要确定饭桌置在饭厅中心, 意思说饭桌四周围一圈都可以走人为准。
5. 饭厅不放镜子。放镜子,主冷退,没有人会眷恋回家吃饭。
6,那么大条横梁在中宫, 主人压力很大,难以出头。目前不过没有压到人, 所以还好。 不过将来你请风水师来看, 他一定会拿这个来大做文章的。将来看有什么办法可以遮掉, 弄掉?
7, 你坐在沙发, 眼看电视, 在电视右手边,亦可置类似古董的瓷器, 或是美丽的雅石,是雅石,不是水晶。
8, 大房的衣橱就依你的想法吧。窗口在那,没什么可以做的。不过主人在书房读读书还可以, 不适宜办公事。
9, 床单可用白色,花纹简单,或深色系列。衣服不放床, 被单要整齐,床底下不堆积杂物,不然会有泌尿系统疾患,女人子宫冷,不易受孕。床头的四条东西,去掉。
10, 如果23房只是有客才用。 则之前的风水提点就不必了。 不过我还是建议在23房,放置一小盆植物, 不拘方位,作为生气用。 因为虽然没人睡,房间亦应该保持生意蓬勃。

大概是这样吧。 以上皆是纸上谈兵。风水务必现场勘查,请自参酌。 楼主若是注重风水, 还劳请有经验可靠的风水师为你鉴定。
回复

使用道具 举报


ADVERTISEMENT

发表于 15-6-2011 09:50 AM | 显示全部楼层
重点是先把向找出来。如果向都不明,其他都白谈。
回复

使用道具 举报

 楼主| 发表于 15-6-2011 03:06 PM | 显示全部楼层
回复 16# leong123


   谢谢你
回复

使用道具 举报

 楼主| 发表于 15-6-2011 03:08 PM | 显示全部楼层
回复 17# 非废仙子


   其实什么是"把向"? 指的是什么?
回复

使用道具 举报

发表于 15-6-2011 03:59 PM | 显示全部楼层
5. 饭厅不放镜子。放镜子,主冷退,没有人会眷恋回家吃饭。
leong123 发表于 15-6-2011 08:56 AM


飯廳真的不能放鏡子嗎?網上查過了,很多人都鼓勵按鏡子在飯廳的咧


  第十招镜子
  在用餐区装设镜子,映照出餐桌上的食物,有使财富加倍的效果。这是家中唯一可以悬挂镜子映照食物的地方,其他诸如厨房是绝对不能挂镜子,因为会导致意外或火灾发生



http://blog.sina.com.cn/s/blog_4bfa7a0a010008b5.html

http://www.fengshuisage.com/com_c12_3.html

● 依中國風水師的說法,「飯廳」有家庭聚寶盆之稱,所以應該掛面鏡子。在飯廳放鏡子能夠增強聚寶的能力,增加家庭的財富,是最能讓鏡子發揮威力的地方。如果家中沒有專用的飯廳,餐桌 所在地區可當作「類聚寶盆」看,把餐桌靠近窗戶,光線特別明亮的地方,一樣能夠進財。

http://www.epochtimes.com/b5/11/2/12/n3168097p.htm
回复

使用道具 举报

您需要登录后才可以回帖 登录 | 注册

本版积分规则

 

所属分类: 命理运勢


ADVERTISEMENT



ADVERTISEMENT



ADVERTISEMENT

ADVERTISEMENT


版权所有 © 1996-2023 Cari Internet Sdn Bhd (483575-W)|IPSERVERONE 提供云主机|广告刊登|关于我们|私隐权|免控|投诉|联络|脸书|佳礼资讯网

GMT+8, 19-11-2025 06:57 AM , Processed in 0.604509 second(s), 23 queries , Gzip On.

Powered by Discuz! X3.4

Copyright © 2001-2021, Tencent Cloud.

快速回复 返回顶部 返回列表