佳礼资讯网

 找回密码
 注册

ADVERTISEMENT

搜索
查看: 7382|回复: 15

求救:神台摆设

  [复制链接]
发表于 27-2-2011 10:44 PM | 显示全部楼层 |阅读模式
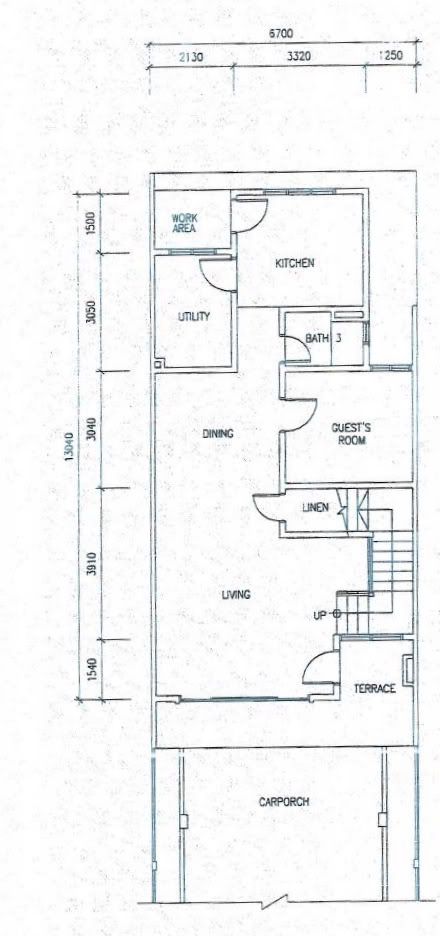
各位有经验的前辈。这应该是一个老问题,可是我真的不知该怎样解决。。一下是我新屋平面图。我的新屋是坐南向北。

难题就是神台该摆哪里呢?有想过living and dining之间做个墙给神台,但担心位于白虎位不太好。

问题:神台可以放在那个Linen前面那道墙吗?这样的话会没有对正大门,而是对着墙,但是是大门的方向。

请各位给予意见。。

谢谢!

回复

使用道具 举报


ADVERTISEMENT

 楼主| 发表于 27-2-2011 11:28 PM | 显示全部楼层
oh 对了,屋子是零度向北。
回复

使用道具 举报

发表于 28-2-2011 11:15 AM | 显示全部楼层
神,供奉通常喜坐生气方,但是不同的神明会喜不同的坐位,这一点你要问问有研究神明的人。
神台后方忌动,后面是楼梯是不行的。也切忌安于乾卦
回复

使用道具 举报

发表于 1-3-2011 11:27 AM | 显示全部楼层
我没有根据什么方位我只是根据整间屋子本身最适合的位子来看,应该就是楼梯下方那个墙的位置。这个位置刚好对准大门出入的位子,神的背后也有靠墙作靠山。因为就算有“肮脏”东西跟着你回家一进大门大神们第一眼就能看见把“他”赶出门。然后无论你们坐在客厅或上楼梯都会看到神明。自然有个安心感。

神位的考量其实很简单,一 要有靠山(就是后墙), 二 就是要对着大门或眺望到大门的方向。三 就是要靠量到“吉位”所在。
回复

使用道具 举报

 楼主| 发表于 1-3-2011 11:02 PM | 显示全部楼层
神,供奉通常喜坐生气方,但是不同的神明会喜不同的坐位,这一点你要问问有研究神明的人。
神台后方忌动, ...
明亮的眼睛 发表于 28-2-2011 11:15 AM


什么是乾卦?
回复

使用道具 举报

 楼主| 发表于 1-3-2011 11:03 PM | 显示全部楼层
我没有根据什么方位我只是根据整间屋子本身最适合的位子来看,应该就是楼梯下方那个墙的位置。这个位置刚好 ...
bluevgo 发表于 1-3-2011 11:27 AM


请问吉位或凶味如何确定呢?
回复

使用道具 举报

Follow Us
发表于 2-3-2011 07:27 AM | 显示全部楼层
如果是根據風水學的話,神龕不一定擺在向大門之處。
通常神龕擺在向大門之處是民間的方法,不論那處是吉凶或犯煞,只要對到大門口就行了。
所以有些專業風水師都說不擺好過擺,擺錯了導致家運更倒楣……。
回复

使用道具 举报

发表于 2-3-2011 09:42 AM | 显示全部楼层
把罗盘放在客厅的中心点,西北方就是乾卦
回复

使用道具 举报


ADVERTISEMENT

发表于 2-3-2011 10:59 AM | 显示全部楼层
其实安神并不在风水学里头,是后期因人的需求才加入到风水里头(其实一点关系也没有)
神其实就是个人的信仰安置在那里也因人的喜好。只是有讲究的人就会将神位设置在比较有讲究的风水位置上。为什么我讲要安置在眺望到大门的方向?其实不尽然是民间的方法。因为通常大门的方向就是纳吉气方向,屋主也讲了他的新家坐南向北。八宅论是“离宅”如果以我说将神的位置安在那里的话神背部就是伏位(吉位)以神面向大厅大门的北方就是“延年”(吉位)。

当然这只是“八宅”的理论。其他的什么九宫飞星,金锁玉关等等的理论众说不一。
所以我才把所谓的“吉位”方在最后考量。
我比较科学点和逻辑点。我考量到的是方便和人的流动线问题。

如果以屋主讲在客厅和餐厅间建一道假墙作为神坛的位置,一就破坏了空气由大门进入流动性,就是空气只能大部分留在客厅难以穿透到餐厅,那在餐厅就要增设风扇(消耗能量),二增设了假墙由大厅照入的阳光也大部分被挡在客厅导致餐厅光线不足,又要增设照明(消耗能量 )。设在楼梯这个位置不会破坏人的方便性。早上起床下到大厅一刻前见到神坛自然会想到上香给神明。(算是好习惯)

当然这个位置有它的不好处,就是上香的烟很难散。没有通风口。日子久了墙会黄,除非你烧得是无烟香(贵呢~)

最后还是要看屋主怎样看 。
回复

使用道具 举报

发表于 2-3-2011 11:34 AM | 显示全部楼层

  家宅安神乃是华族同胞们习俗上一种信仰,在南洋一带尤其普遍,可说户户有神明,但安神的方式与手法几乎各门各派都不一样,以眼花缭乱来形容也不为过。



笔者多年的经练发现一般民众对安神的观念,普遍进入了四个古板误区。


误区1;神卓一定要面向大门方。

误区2;神桌若没法面向大门时,一定要面向窗口。

误区3;神桌若没法面向大门和窗口时,一定要面向开阳之处,如阳台,落地窗等等。

误区4;神桌一定要安在青龙位,忌按屋的右方,怕触犯白虎位。



虽这误区没有对错之分,只因人们没有更好的方法而已,尤其家中有年长者同住的家庭尤甚,因年长者普遍认为,若不在以上所提的四个位置上,如同亵犊神明,宁愿不安神。



其实安神祈求平安本是无可厚非之事,但若能配合风水得好磁场辅助,要启动贵人,财富运等,可说是轻而易举之事。


正所谓“用神得当必发”。



笔者首推三合安神法,举例;若生肖属龙之宅主,可把神桌安在本命三合方,如子位或申位。


神桌或神像不宜安在本命生肖正方或对方,

“犯坐煞与面煞”。



倘若屋内可选的位置有限(因现代的地皮洛阳纸贵,水涨船高,屋形亦趋缩变小),可在原有的位置上,把神像面向本命三合吉方亦可。




举例;再不移动神桌的情况下,把神像移至所要的方向(笔者建议不宜超过
45度为佳),可能整体看起来有点怪,但绝对是百利而无一害(此法乃是笔者经过多年堪舆发现所得及不轻易透露的安神秘法)。
回复

使用道具 举报

发表于 2-3-2011 11:56 AM | 显示全部楼层
樓主的所謂坐南向北是看前方的落地玻璃門還是那個旁邊的木門?
回复

使用道具 举报

 楼主| 发表于 2-3-2011 11:21 PM | 显示全部楼层
樓主的所謂坐南向北是看前方的落地玻璃門還是那個旁邊的木門?
唔留手 发表于 2-3-2011 11:56 AM


北方是落地玻璃大门。但是旁边那个木门才是主要会用到的大门。有关系吗?

谢谢大家的意见。我觉得应该会摆在楼梯下那面墙了。只是有点可惜没有正正看出落地玻璃门。
回复

使用道具 举报

发表于 6-3-2011 01:51 PM | 显示全部楼层
楼主要安心还是找一找老师来看会比较好。
回复

使用道具 举报

 楼主| 发表于 8-3-2011 11:20 PM | 显示全部楼层
有没有什么价钱公道又不错的师傅介绍?
我住在蒲种。
回复

使用道具 举报

发表于 9-3-2011 10:32 AM | 显示全部楼层
进来参考参考.....
回复

使用道具 举报

 楼主| 发表于 22-3-2011 11:15 PM | 显示全部楼层
通常你们都订做神台吗?
回复

使用道具 举报


ADVERTISEMENT

您需要登录后才可以回帖 登录 | 注册

本版积分规则

 

所属分类: 命理运勢


ADVERTISEMENT



ADVERTISEMENT



ADVERTISEMENT

ADVERTISEMENT


版权所有 © 1996-2026 Cari Internet Sdn Bhd (483575-W)|IPSERVERONE 提供云主机|广告刊登|关于我们|私隐权|免控|投诉|联络|脸书|佳礼资讯网

GMT+8, 9-5-2026 02:01 AM , Processed in 0.097908 second(s), 11 queries , Gzip On, Redis On.

Powered by Discuz! X3.4

Copyright © 2001-2021, Tencent Cloud.

快速回复 返回顶部 返回列表