|
查看: 2104|回复: 11
|
家居风水(图来了,各路师父,请指教。)
[复制链接]
|
|
|
本帖最后由 pensnh 于 20-7-2010 03:18 PM 编辑
我命属坤土,太太命属离火。我家是坎宅,大门(Auto-gate)向南。
以"東四命配東四宅,西四命配西四宅,才為吉算,反之不吉"的说法,我应该怎么做才能反凶为吉,又不影响太太的吉?
请指教。 |
|
|
|
|
|
|
|
|
|
|

楼主 |
发表于 7-7-2010 11:52 PM
|
显示全部楼层
没人理我? |
|
|
|
|
|
|
|
|
|
|
发表于 8-7-2010 12:07 AM
|
显示全部楼层
|
|
|
|
|
|
|
|
|
|
发表于 8-7-2010 05:21 AM
|
显示全部楼层
|
起伏位方法很多,东西四命只是其中一种,把你家的图放上来比较好判断。 |
|
|
|
|
|
|
|
|
|
|
发表于 8-7-2010 06:40 PM
|
显示全部楼层
汽车进出用的大铁栅应该不用来算在内吧……。 |
|
|
|
|
|
|
|
|
|
|
发表于 11-7-2010 08:28 AM
|
显示全部楼层
|
古时的一些八宅书籍都是以四合院的最大门定伏位,以汽车进出用的大铁栅定伏位可能是成立的。。。 |
|
|
|
|
|
|
|
|
|
|
发表于 11-7-2010 08:50 AM
|
显示全部楼层
四合院的围墙高大又实壁(无缝)所以可能包括在内呱……。 |
|
|
|
|
|
|
|
|
|
|
发表于 11-7-2010 09:49 AM
|
显示全部楼层
|
|
|
|
|
|
|
|
|
|
发表于 14-7-2010 05:22 PM
|
显示全部楼层
苏民峰说八宅不再看人的命卦,只看宅卦 |
|
|
|
|
|
|
|
|
|
|
发表于 15-7-2010 05:50 AM
|
显示全部楼层
|
试一下用纳音五行代替命卦,找出门,主,灶的生克制化,在定吉凶。 |
|
|
|
|
|
|
|
|
|
|

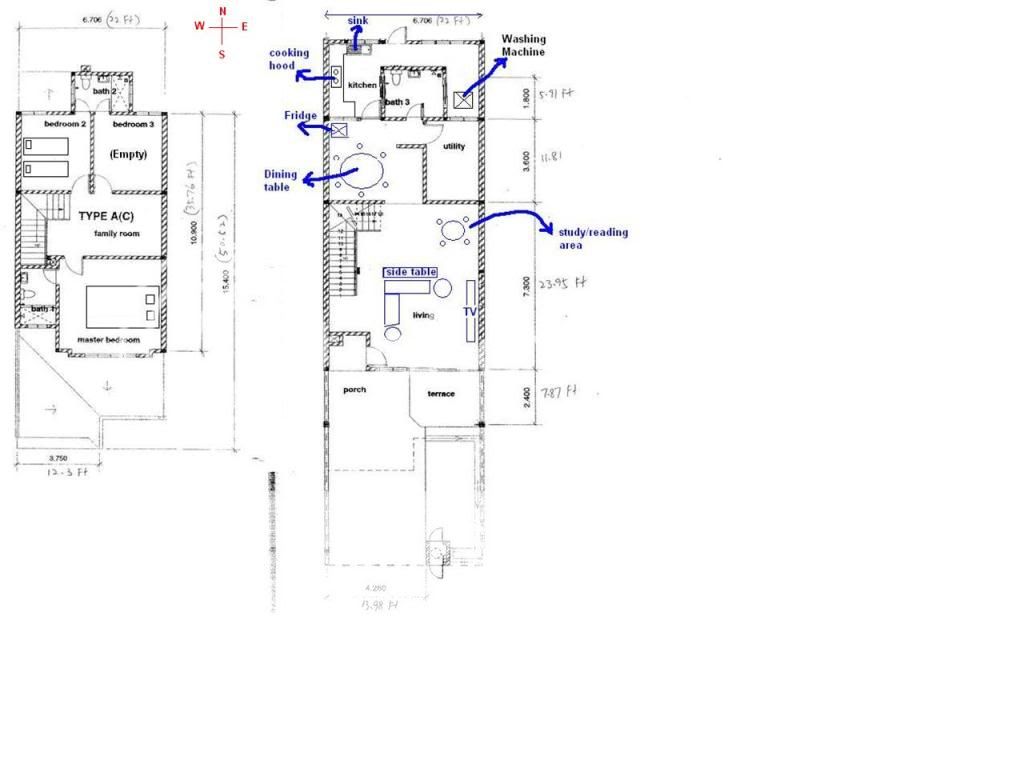
楼主 |
发表于 20-7-2010 03:17 PM
|
显示全部楼层
本帖最后由 pensnh 于 20-7-2010 03:49 PM 编辑
图来了。各路师父,请指教。
 |
|
|
|
|
|
|
|
|
|
|
发表于 21-7-2010 06:09 AM
|
显示全部楼层
八宅我一向以门起伏位。
以八宅来说床的方位都不错,落于生气位,对事业,家庭都有帮助,而且有进取心。
bedroom 2 的床位稍微有点不好,睡那边容易头痛,把床位换一下就好。 |
|
|
|
|
|
|
|
|
| |
本周最热论坛帖子
|