|
查看: 1550|回复: 22
|
犯官非,是风水问题吗?
[复制链接]
|
|
|
屋子向南,屋主属牛,为人良善。
犯官非,是屋子风水问题,还是屋主流年问题? |
|
|
|
|
|
|
|
|
|
|
发表于 2-3-2010 11:35 AM
|
显示全部楼层
假如是正南就没有那么好。  |
|
|
|
|
|
|
|
|
|
|
发表于 2-3-2010 11:43 AM
|
显示全部楼层
回复 1# lu18
把您家的卫星图发上来。。
可以的话 floor plan?? |
|
|
|
|
|
|
|
|
|
|
发表于 2-3-2010 05:12 PM
|
显示全部楼层
風水跟命理都可以看得出來
不過看到的角度有點不一樣 |
|
|
|
|
|
|
|
|
|
|
发表于 2-3-2010 05:12 PM
|
显示全部楼层
風水跟命理都可以看得出來
不過看到的角度有點不一樣 |
|
|
|
|
|
|
|
|
|
|

楼主 |
发表于 2-3-2010 08:30 PM
|
显示全部楼层
假如是正南就没有那么好。
kaisam 发表于 2-3-2010 11:35 AM 
就是正南。 |
|
|
|
|
|
|
|
|
|
|

楼主 |
发表于 2-3-2010 08:34 PM
|
显示全部楼层
本帖最后由 lu18 于 2-3-2010 08:39 PM 编辑
回复 3# timmyw
18/1, 最左边的是1号,是第二间。
对面是低下大概10-20米的空地,屋子对面路旁有棵树。
FLOOR PLAN
 |
|
|
|
|
|
|
|
|
|
|
发表于 2-3-2010 09:37 PM
|
显示全部楼层
可不可以, 拍拍你房里的照片来看看。。 |
|
|
|
|
|
|
|
|
|
|

楼主 |
发表于 2-3-2010 10:11 PM
|
显示全部楼层
可不可以, 拍拍你房里的照片来看看。。
ymleong 发表于 2-3-2010 09:37 PM 
就是MASTER BEDROOM 啊,摆设跟图中一样。 |
|
|
|
|
|
|
|
|
|
|
发表于 2-3-2010 10:54 PM
|
显示全部楼层
|
|
|
|
|
|
|
|
|
|
发表于 2-3-2010 11:05 PM
|
显示全部楼层
|
|
|
|
|
|
|
|
|
|

楼主 |
发表于 4-3-2010 12:26 AM
|
显示全部楼层
正南是吵架屋, 难免会惹官非。
正南的屋子以前是给皇帝住的。
加上你的厨房是五鬼位 ...
kaisam 发表于 2-3-2010 11:05 PM 
过去都没事啊。
我最不喜欢跟人争吵,可以化解吗? |
|
|
|
|
|
|
|
|
|
|

楼主 |
发表于 4-3-2010 12:27 AM
|
显示全部楼层
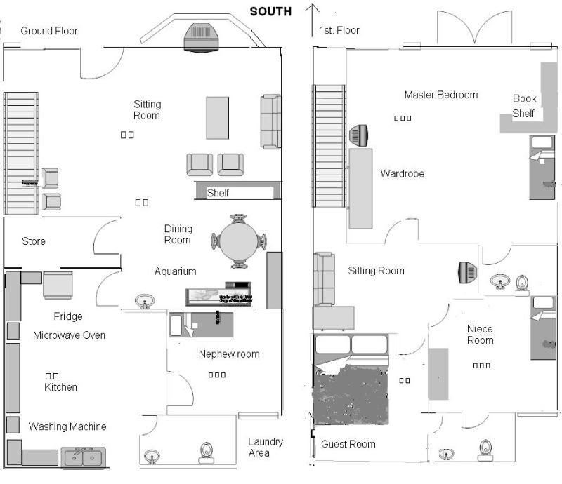
非常感谢timmyw 的热心帮忙,我把平面图的一些细节加上了。
 |
|
|
|
|
|
|
|
|
|
|
发表于 4-3-2010 12:42 AM
|
显示全部楼层
回复 13# lu18
请显示box fan正确位子?? |
|
|
|
|
|
|
|
|
|
|

楼主 |
发表于 4-3-2010 12:54 AM
|
显示全部楼层
本帖最后由 lu18 于 4-3-2010 11:15 AM 编辑
回复 lu18
请显示box fan正确位子??
timmyw 发表于 4-3-2010 12:42 AM 
就在COMPUTER 和长沙发之间,用电脑时就开。
还有一个BOX FAN是在主人房,放在床尾,吹向厕所。 |
|
|
|
|
|
|
|
|
|
|
发表于 4-3-2010 12:03 PM
|
显示全部楼层
|
|
|
|
|
|
|
|
|
|

楼主 |
发表于 4-3-2010 12:12 PM
|
显示全部楼层
向正南的屋子是没有的化解的。。。 多做善事希望可以化解。
五鬼- 煮吃炉下面放黄卡下面再放天然 ...
kaisam 发表于 4-3-2010 12:03 PM 
我谢谢你才真。 |
|
|
|
|
|
|
|
|
|
|
发表于 4-3-2010 12:15 PM
|
显示全部楼层
我谢谢你才真。
lu18 发表于 4-3-2010 12:12 PM 
不要客气, 希望可以与大家分享。  |
|
|
|
|
|
|
|
|
|
|
发表于 4-3-2010 12:19 PM
|
显示全部楼层
本帖最后由 kaisam 于 4-3-2010 12:20 PM 编辑
忘了告诉你。。。 
三碧 - 门后面可以黏张粉红色的卡。
有效期 04-02-2010 到 03-02-2011. 之后要拆掉。
因为 2011 年这个位子是二黑, 红色 / 粉红色会旺二黑。
谢谢。  |
|
|
|
|
|
|
|
|
|
|

楼主 |
发表于 4-3-2010 12:47 PM
|
显示全部楼层
再次感谢。
佳礼网友好热心,timmyw 也正在帮我研究。 |
|
|
|
|
|
|
|
|
| |
本周最热论坛帖子
|