|
查看: 1996|回复: 19
|
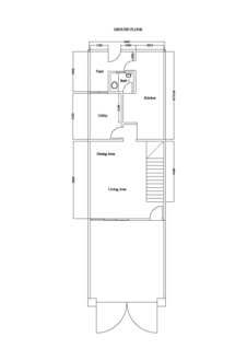
请帮我看看我家的大门口
[复制链接]
|
|
|
请问我家的小门对着楼梯是不是会影响风水呢?
我听人说门口不可以直对楼梯, 但是不知道原因
有谁知道真正的原因呢?
 |
|
|
|
|
|
|
|
|
|
|
发表于 29-9-2008 11:42 AM
|
显示全部楼层
|
楼梯不好对门口, 漏财。 应该想办法把楼梯转向。 就是说把楼梯口接出来转向左边, 就可以化解了。 file:///C:/DOCUME%7E1/ADMINI%7E1/LOCALS%7E1/Temp/moz-screenshot.jpgfile:///C:/DOCUME%7E1/ADMINI%7E1/LOCALS%7E1/Temp/moz-screenshot-1.jpg |
|
|
|
|
|
|
|
|
|
|

楼主 |
发表于 29-9-2008 04:44 PM
|
显示全部楼层
原帖由 alixvcf 于 29-9-2008 11:42 AM 发表 
楼梯不好对门口, 漏财。 应该想办法把楼梯转向。 就是说把楼梯口接出来转向左边, 就可以化解了。 file:///C:/DOCUME%7E1/ADMINI%7E1/LOCALS%7E1/Temp/moz-screenshot.jpgfile:///C:/DOCUME%7E1/ADMINI%7E1/LOCALS ...
原来是漏财...
如果我将门该成窗口可以吗? |
|
|
|
|
|
|
|
|
|
|
发表于 30-9-2008 11:34 AM
|
显示全部楼层
|
也不能。 唯一的方法, 就是改楼梯的方向。多一个选择, 就是如果你进门的玄关处和楼梯口之间的空间够大,可以放一个屏风隔开, 也能挡住煞气。 |
|
|
|
|
|
|
|
|
|
|

楼主 |
发表于 30-9-2008 12:30 PM
|
显示全部楼层
原帖由 alixvcf 于 30-9-2008 11:34 AM 发表 
也不能。 唯一的方法, 就是改楼梯的方向。多一个选择, 就是如果你进门的玄关处和楼梯口之间的空间够大,可以放一个屏风隔开, 也能挡住煞气。
那边很小位大概是4'左右, 放不到屏风... |
|
|
|
|
|
|
|
|
|
|
发表于 3-10-2008 12:29 PM
|
显示全部楼层
|
那真的没办法了,, 一定要想办法把楼梯转向了,不然,再努力工作也看不到钱。 |
|
|
|
|
|
|
|
|
|
|
发表于 4-10-2008 02:13 PM
|
显示全部楼层
|
|
|
|
|
|
|
|
|
|
发表于 16-10-2008 04:24 PM
|
显示全部楼层
原帖由 moon_boy 于 4-10-2008 02:13 PM 发表 
这种屋子的设计哦?
通常出来的效果都是人丁不和
有办法破解吗? |
|
|
|
|
|
|
|
|
|
|
发表于 16-10-2008 04:45 PM
|
显示全部楼层
还有一个方法,就是改门。把门改去另一边就不会对楼梯了  |
|
|
|
|
|
|
|
|
|
|
发表于 19-10-2008 01:48 PM
|
显示全部楼层
楼主,这是新家吗?
我的新家也是这种设计,不过小弟我还没拿到锁匙。。。喜欢这种设计,因为客厅够大(空间关系)。。。
如果你担心的话,可以封门用另一边的sliding door当作大门咯。。。嘻嘻~
p/s:不过我的家不会去封门,因为我要把它变成“旺门”。。。 |
|
|
|
|
|
|
|
|
|
|
发表于 19-10-2008 01:53 PM
|
显示全部楼层
|
|
|
|
|
|
|
|
|
|
发表于 19-10-2008 09:34 PM
|
显示全部楼层
回复 5# syfoo 的帖子
放不到屏风就把楼梯转弯吧......能的话, 楼梯转弯后建些墙壁来遮着门口和楼梯...... |
|
|
|
|
|
|
|
|
|
|
发表于 21-10-2008 04:48 PM
|
显示全部楼层
|
|
|
|
|
|
|
|
|
|
发表于 22-10-2008 11:22 AM
|
显示全部楼层
|
窗口对楼梯也是漏财的设计, 如果实在没办法, 你只好用不透光(银色)的窗帘遮住它,好过什么都不做。 |
|
|
|
|
|
|
|
|
|
|
发表于 27-10-2008 08:01 AM
|
显示全部楼层
絕不會漏财!!!
除非'''氣衝'''
衝起樂宮無上寶!!!
但要先判星盤! |
|
|
|
|
|
|
|
|
|
|
发表于 28-10-2008 12:06 AM
|
显示全部楼层
大门面对楼梯向下,在风水中,叫做卷帘水,屋气外泄.人的运气自然也外泄了.会造成破财.、
把正对着大门的楼梯转一个方向 |
|
|
|
|
|
|
|
|
|
|
发表于 30-10-2008 02:57 PM
|
显示全部楼层
|
|
|
|
|
|
|
|
|
|
发表于 30-10-2008 02:58 PM
|
显示全部楼层
原帖由 任运之 于 27-10-2008 08:01 AM 发表 
絕不會漏财!!!
除非'''氣衝'''
衝起樂宮無上寶!!!
但要先判星盤!
这几句好深哦!不明白! |
|
|
|
|
|
|
|
|
|
|
发表于 30-10-2008 02:59 PM
|
显示全部楼层
原帖由 p98h 于 19-10-2008 01:48 PM 发表 
楼主,这是新家吗?
我的新家也是这种设计,不过小弟我还没拿到锁匙。。。喜欢这种设计,因为客厅够大(空间关系)。。。
如果你担心的话,可以封门用另一边的sliding door当作大门咯。。。嘻嘻~
p/s:不过我的 ...
要如何改成旺门? |
|
|
|
|
|
|
|
|
|
|

楼主 |
发表于 6-11-2008 09:18 AM
|
显示全部楼层
原帖由 法界众生 于 19-10-2008 09:34 PM 发表 
放不到屏风就把楼梯转弯吧......能的话, 楼梯转弯后建些墙壁来遮着门口和楼梯......
那么是封着那门口是吗? |
|
|
|
|
|
|
|
|
| |
本周最热论坛帖子
|